路桥视频| 路桥隧交流论坛| 站点地图|
首页| 文库| 博客| 图库| 视频| 网摘| 路桥隧交流|
  • 行业资讯
  • 路基路面
  • 桥梁涵洞
  • 隧道工程
  • 测量绘图
  • 学术论文
  • 施组方案
  • 试验质检
  • 内业资料
  • 安全环保
网站公告: 网站新建QQ交流群 路桥吾爱第五版更新. 把QQ空间或其他博客.

您的位置: 路桥吾爱 >> 文库 >> 桥梁涵洞 >> 查看资讯

推荐给好友 上一篇 | 下一篇

小半径曲线梁桥设计体会

字体:  小  中  大  | 打印 发布:  作者: 路桥吾爱搜集  来源: 网络  查看: 1053次 评论: 0条 好评: 0分

 
关键词: 小半径曲线桥梁;直线桥梁;预应力混凝土结构;箱梁;立交桥;
 
1引言
      随着国民经济和社会的发展,城市中需要大量兴建高架桥和立交桥,但由于城市交通功能的要求和地形条件的限制,多采用曲线桥梁和匝道桥。这些桥梁线型变化多端,结构受力比较复杂,特别是小半径曲线梁桥,除承受弯矩、剪力外,还有较大扭矩和翘曲双力矩的作用。据有关报道,深圳市40座立交桥中,有19座立交桥存在大小不同的问题,产生问题的原因是多方面的,有的在连续梁曲线内侧端支座脱空;有的曲线梁体向曲线外侧径向整体侧移;有的墩梁固结处在立柱顶部(与梁底衔接处)产生水平环形裂缝等危及桥梁正常使用的现象。但总的来说属于在探索和设计过程中认识不足和尚未认识的失误。因此小半径曲线梁桥的设计越来越引起人们的重视,当务之急是我国现行相关技术规范和设计计算理论有待进一步研究和完善。本文结合南方某市立交桥的设计,浅谈小半径曲线梁桥的设计体会。
 
2总体设计
2.1 设计标准
1.      设计荷载:城-A级;
2.      温度荷载:结构体系温差±15度,箱梁顶板日照升温10度。
3.      桥面净宽:8.0m。
4.      设计车速:40km/h。
5.      抗震等级:按地震烈度-8度设防(桥址区域地震基本裂度为7度)。
 
2.2 设计要点
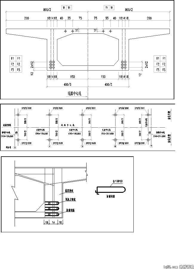
1.      桥梁上部结构为四跨一联预应力砼连续曲线箱梁,位于在圆曲线和缓和曲线上,曲线半径最小为60米。分跨布置为:30.0m+40.0m+32.0m+29.0m=131m。主梁为单箱单室箱梁,梁高在第一跨由1.5m渐变为2.1m,在第三跨又由2.1m渐变为1.5m;梁高为跨径的1/19。顶板宽8.0m,底板宽4.0m,箱梁翼板悬臂2.0m,腹板厚50cm,顶.底板厚20cm。支点处设横隔梁,中横隔梁宽2.0m,端横隔梁宽1.0m。(箱梁跨中横断面见图一)
2.      箱梁采用单向预应力体系。纵向预应力筋采用高强度低松弛钢绞线(12-7ф5及7-7ф5),钢束均为一端张拉。(箱梁跨中预应力钢束布置见图一)
3.      由于本桥曲线半径较小,结构在荷载作用下,弯扭偶合作用明显,结构扭矩较大。为减小扭矩,在各墩均设置双支座。(支座布置示意见图二)
4.      小半径曲线梁桥的纵向预应力钢束沿箱梁腹板平面曲线线型变化而布置成水平曲线,预应力钢束对混凝土产生较大的径向力,它除对相邻两预应力束之间的混凝土产生局部承压作用外,还对预力束与箱梁内弧侧之间的混凝土产生崩弹作用,故这种径向力对箱梁腹板的受力是很不利的。为了解决这个问题,在钢束布置时,相邻两预应力钢束之间留有14cm的混凝土厚度,箱梁腹板留有18cm的混凝土厚度保护层来抵抗这种侧向崩弹力,同时在腹板内设置防崩钢筋。(防崩钢筋示意见图三)
 
图一、二、三
 
3设计体会
      小半径曲线梁桥的构造形式与直线梁桥有不少相似之处,但由于它是曲线梁桥,其结构受力的特点不同,在构造处理上也相应有其较多特点。
1、由于曲线梁桥比直线梁桥的受力复杂,对结构的抗弯、抗扭性能要求高于同跨径的直线梁桥,故采用整体性好、抗扭刚度大就地浇注的连续箱形梁桥比较好。
2、小半径曲线梁桥的梁高大于跨径的1/18时,是比较经济的。在特殊情况下也不应小于跨径的1/22。
3、由于混凝土的收缩、徐变涉及的因素较多,每个工程中混凝土的材料、级配不尽相同,要很精确的计算出混凝土收缩、徐变对小半径曲线梁桥的作用较难。故在设计小半径曲线梁桥,最好采用普通钢筋混凝土结构。对于预应力混凝土曲线梁桥,纵向预应力筋采用高强度低松弛钢绞线,但钢束一般不大于12-7ф5,压应力应小于12MPa,拉应力小于1MPa,为预应力A类构件即可。
4、与一般的直线桥相比,曲线箱梁桥顶板、底板和腹板中的纵向受力钢筋、横向钢筋、箍筋、水平分布钢筋都要考虑到全桥计算和构造上的需要,并适当加强。
5、在预应力混凝土曲线梁桥中设置防崩钢筋。
6、在支承形式上,小半径曲线梁桥通常三种布置形式:①全部采用抗扭支承。②两端设置抗扭支承,中间设单支点铰支承。③两端设置抗扭支承,中间既有单支点铰支承,又有抗扭支承的混合式支承,下部墩柱当与之相匹配。
对于多跨小半径曲线连续梁桥,全部为抗扭支承与中间为点铰支承的,两者在荷载作用下的弯矩和剪力值差别甚小,而且曲率的变化对弯矩值的影响也只有1%~2%;,但对扭矩的影响,则随曲率的增大而加大。当各跨圆心角大于30度时,中间设单支点铰支承的扭矩控制值比全部为抗扭支承的扭矩控制值要大15%左右。在中间设独柱式单支点曲线连续梁内,上部结构的扭矩不能通过中间单支点支承传至基础,而只能由曲线桥两端设置的抗扭支承来传递。在此情况下连续梁的全长成为受扭跨度,这也是我们常常所说的扭矩的传递作用。必然造成曲线桥两端抗扭支承处产生过大的扭矩,造成曲线梁端部内侧支座脱空,所以在必要时,须对多跨桥梁中间墩设置两支点的抗扭支承。
     如果在中间墩点支承向曲线外侧方向预设一定偏心值,就可以调整曲线梁桥的梁体恒载扭矩分布,有效地降低两端抗扭支承的恒载扭矩值。但这一措施对减少活载扭矩的影响较小,这是由于活载引起的扭矩中车辆偏载占了很大一部分。
7、必要时可在墩顶设置限位挡块或采用墩梁固接的办法来限制曲线梁桥的梁体径向位移。
 
4结束语
     小半径曲线梁桥的设计计算比较复杂,其温度效应、预应力效应、活载的影响面加载都不同于直线桥梁的计算。但通过高精度的有限元分析计算,我们可以较为准确地掌握其结构的受力行为。针对其不同于直线梁的受力特点,在设计中采用相应的有效措施,是可以设计出较为可靠且经济适用的曲线桥梁的。
 

Google

 
-5 -3 -1 - +1 +3 +5

评分:0

发表评论

【声明】 路桥吾爱刊载的资讯及其他内容均由网友提供分享 并且纯属作者个人观点,不表示路桥吾爱同意其说法或描述,仅为提供更多信息,也不构成任何建议。网友转载请注明原作者姓名及出处。如有侵犯到您的版权,请与我们联系,我们会马上进行重新整理!

信息搜索 便民服务

  • 标题:
  • 分类:

最近更新

  • 小箱梁设计指南
  • 缆索吊机施工技术简介
  • 资阳沱江二桥深水基础钻孔平台施工
  • 高性能混凝土的现状及发展趋势分析
  • 阜周高速公路桥面铺装施工方案
  • 钢管混凝土拱桥施工技术(图)
  • 水泥砼路面断板维修工程实例
  • 混凝土工程施工质量的控制
  • 连霍高速郑州段改建工程NO.3标桥梁拼宽施工技术
  • 沙特南北铁路工程混凝土的夏季施工方法探讨

本月热点

相关阅读

  • 世界级的京台高铁,啥时候可以通车(图)
  • 住房城乡建设部关于简化建筑业企业资质标准部分指标的通知
  • 港珠澳大桥主体工程今日全线贯通 能抗16级台风(图)
  • 中铁建老总向总理倒苦水:有国企200多空壳公司就为1事
  • 厘清竞争性谈判与竞争性磋商之差异(图)
  • 橡胶粉改性沥青SMA混合料性能研究(图)
  • 李克强主持召开国务院常务会议部署推进城市地下综合管廊建设 扩大公共产品供给提高…
  • 李克强剑指中国“地下”问题 力推综合管廊
  • 国务院关于取消和调整一批行政审批项目等事项的决定
  • 粤赣高速河源段匝道断裂 多辆大卡车坠落(图)
  • 城市地下综合管廊工程规划编制指引
  • 25号联合令:基础设施和公用事业特许经营管理办法.doc
  • 管清友:PPP模式的五大关键
  • 在城市地下综合管廊规划建设培训班座谈会上的讲话
  • 关于推广运用政府和社会资本合作模式有关问题的通知
  • 国务院关于创新重点领域投融资机制 鼓励社会投资的指导意见
  • 国务院办公厅关于加强城市地下管线建设管理的指导意见
  • 2014年某道路工程二监办监理工作总结
  • 庆镇二级路汇报材料
  • 成都隧道发生疑似瓦斯爆炸 致22人受伤 一人死亡(图)

赞 助 商

点击这里给我发消息 加入【路桥吾爱-lq52.com】QQ群 | 交流论坛 | 站点地图 | 友情链接 | 空间列表 | 站点存档 | 手机访问 |

路桥吾爱 2001-2012 湘ICP备16018960号-1